Электрическая система грузовиков VOLVO FH12 и VOLVO FH16 всегда отличалась сложностью и высокой степенью интеграции между узлами, а корректная диагностика невозможна без точных заводских схем. Представленный технический документ содержит полный набор электрических цепей, схем проводки и графических иллюстраций, которые применяются в обслуживании, ремонте и восстановлении проводки этих моделей. Руководство создано на основе сервисной документации VOLVO и включает структурированное описание всех электрических компонентов и соединений автомобиля, сохраняя оригинальную нумерацию и маркировку элементов.
На первых страницах приведены примеры схем и расшифровка всех символов, используемых в электрических диаграммах VOLVO. Это значки батареи, массы, реле, предохранителей, датчиков, ламп, выключателей, клапанов и блоков управления, а также обозначения витых кабелей, жгутов, соединительных муфт и контактных групп. Такой раздел особенно важен для специалистов, поскольку правильная интерпретация условных обозначений гарантирует точность при поиске обрыва цепи, короткого замыкания или неправильного сопротивления.
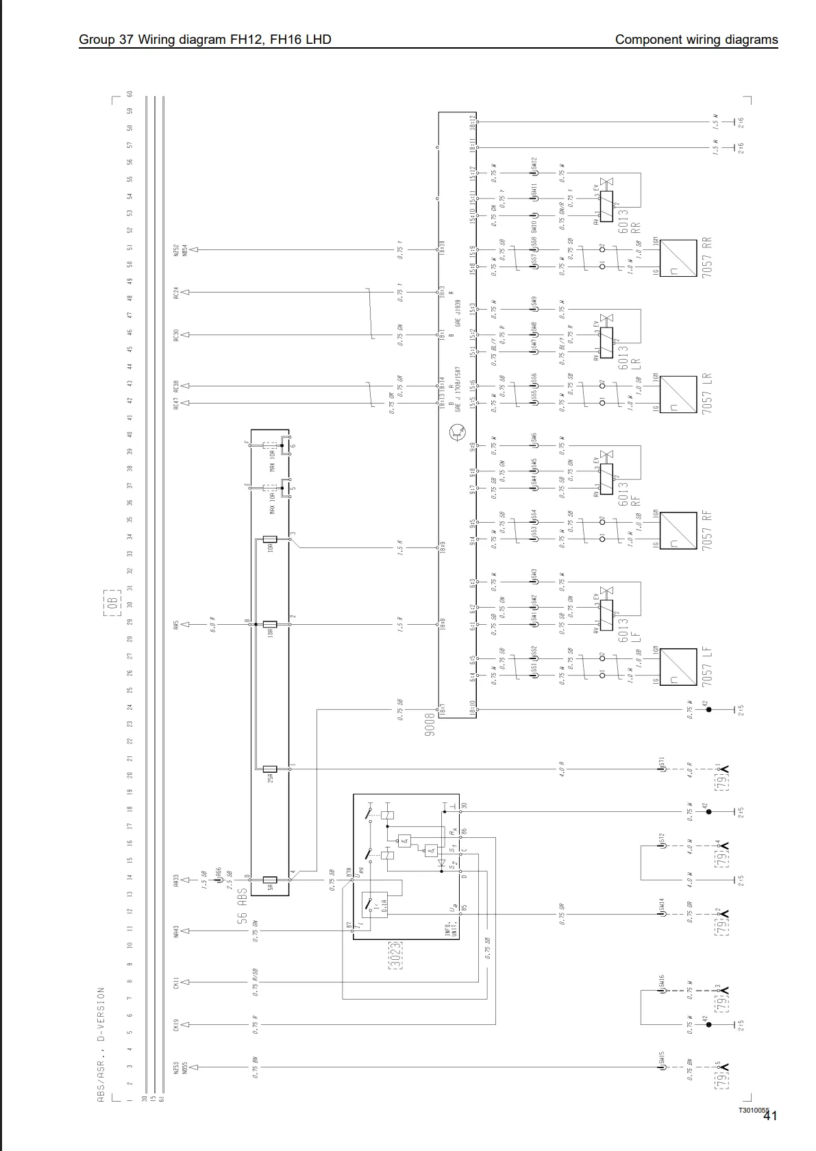
Далее документ содержит индекс электрических схем по системам. Помимо основных цепей питания и запуска, здесь представлены схемы фар, стоп-сигналов, габаритов, прицепной электроники, указателей поворота, внутреннего освещения, подогрева зеркал, отопления кабины, климатической установки, электростеклоподъёмников, стояночного отопителя, датчиков уровня и давления, систем ABS, блокировок мостов, подъёма оси, центрального замка и других функциональных групп. Каждая схема содержит детальную нумерацию компонентов, цветовую маркировку проводов и ссылки на разъёмы.

Следующая важная часть документа — иллюстрации жгутов проводки . Показаны жгуты кабины, рамы, двигателя, отопителя, стояночного отопителя, системы подъёма оси, подвески, дверей, зеркал, ABS, а также дополнительные кабели и магистрали. Здесь подробно видно расположение разъёмов, ветвление проводов, точки соединения и участки перехода от одного жгута к другому. Для ремонта проводки этот раздел особенно ценен: по нему можно точно восстановить заводскую трассировку и избежать ошибок при монтаже.
Отдельно выделены блоки предохранителей и реле. В таблицах указано назначение каждого элемента, включая питание систем освещения, фар, стоп-сигналов, вентилятора отопителя, подогрева зеркал, электростеклоподъёмников, ABS, блока управления двигателем, подушек безопасности, прицепной электроники, дневного света, розетки 12 В и других цепей. Такое структурное описание облегчает диагностику, когда необходимо быстро определить отсутствие питания или неправильную работу конкретной электрической группы.
Финальная часть включает полные списки компонентов, разъёмов и аббревиатур . Здесь перечислены все электрические устройства грузовика — лампы, датчики, клапаны, блоки управления, электродвигатели, нагреватели, реле, переключатели, приборные панели, соленоиды и десятки других элементов. Для каждого указан код, место установки и связанная цепь. Это незаменимая база для диагностики, позволяющая быстро идентифицировать любой компонент в схеме и на самом автомобиле.
Таким образом, представленное руководство является полноценным техническим источником, охватывающим всю электрическую систему VOLVO FH12 и FH16 в заводском исполнении. Оно подходит для квалифицированного ремонта, обслуживания, модернизации электрооборудования и восстановления проводки после повреждений. Структура документа обеспечивает максимально удобную навигацию: от общей схематики и обозначений до конкретных жгутов, разъёмов и точек подключения. Для электриков и диагностов это один из самых точных и подробных материалов, доступных для данных моделей.
Автор: Volvo Truck Corporation
Год: 1998
Формат: PDF
Качество: eBook (изначально компьютерное)

